Mademoiselle Frikadelle
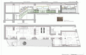
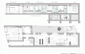
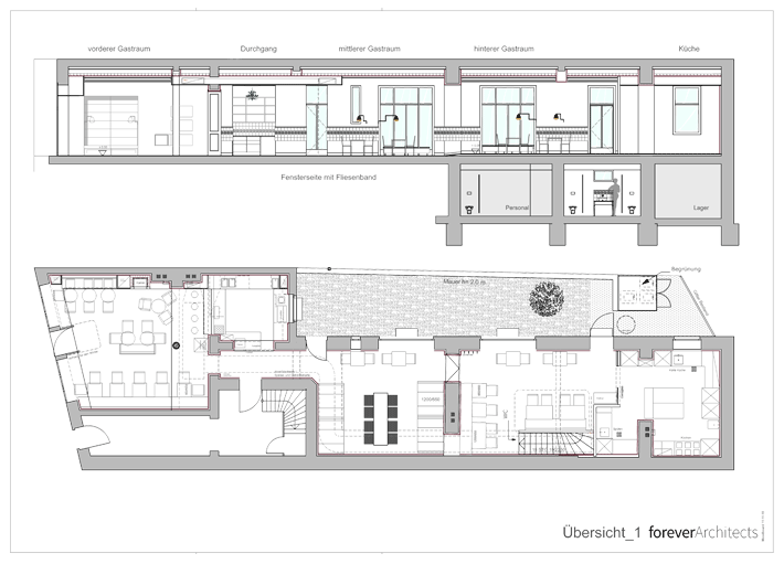
Entwurf und Konzeption eines Cafe / Restaurant Aachener Straße 9 in Köln mit innovativer Luft- und Ablufttechnik
Ca. 215 m² Gesamtfläche mit 3 Gasträumen, Kochküche, Bar mit Cocktailstation, sanitären Anlagen und Nebenräume. Mit zum Entwurfskonzept gehört die Aussenanlage im Hof.
zurück
This entry was posted on Thursday, January 3rd, 2013 at 11:35
You can follow any responses to this entry through the RSS 2.0 feed.
Tags: Bar, Cocktailstation, Gasträume, Kochküche, Köln, sanitäre Anlagen
Posted in: Blog
13 years, 2 months ago
Comments Off
